
Centre ville, dans l'authentique quartier des antiquaires/Marolles, comparé au "Marais parisien" et à proximité immédiate de la place du Jeu de Balles, transports, nombreux commerces, terrasses et restaurants.
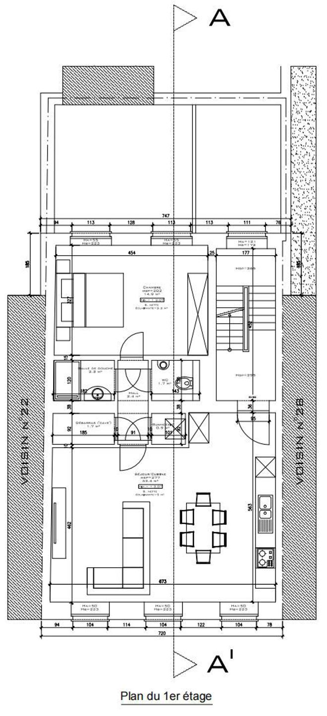
En face du commissariat et de son parking, dans un immeuble entièrement rénové, lumineux appartement NEUF comprenant un grand séjour exposé sud-ouest avec vue dégagée et cuisine hyper équipée (hotte, taques, four, frigo, congélateur et lave-vaisselle), hall de nuit vers belle chambre (15m²) à l'arrière, salle de douches, toilette séparée, buanderie et cave/débarras dans l'appartement. Cave individuelle au sous-sol. Crochet de rangement pour vélo.
Chaudière individuelle à condensation au gaz. Peb C. En conformité électrique. Porte sécurisée, vidéophone, double vitrage et belle hauteur sous plafond! Très peu de charges communes. Compteurs d'eau, gaz et électricité privatifs. Possibilité de bénéficier d'une réduction (abattement) de 25.000 eur sur les droits d'acquisition. Disponible à l'acte.
Hectolitre 26 - 1000 Bruxelles
Référence | 6264333 |
---|---|
Catégorie | Appartement |
Meublé | Non |
Nombre de chambres | 1 |
Nombre de salles de bain | 1 |
Garage | Non |
Surface habitable | 69 m² |
Disponibilité | à l'acte |
Etage | 1 |
---|---|
Nombre d'étages | 4 |
Parking intérieur | Non |
---|---|
Année de rénovation | 2023 |
Accès handicapés | Non |
---|---|
Cuisine | Oui |
Chauffage (ind/coll) (type (ind/coll)) | individuel |
Ascenseur | Non |
Double vitrage | Oui |
Chauffage (type) | condensation |
Type de cuisine | amer. super-équipée |
Sdb (type) | douche |
Parlophone | Oui |
Videophone | Oui |
Buanderie | Oui |
---|---|
Cave | Oui |
Nbre de toilette(s) (nombre) | 1 |
---|---|
Chambre 1 (surface) | 15 m² |
Largeur de façade | 7 |
Salle de séjour (surface) | 34 m² |
Magasins (distance (m)) | 100 |
---|---|
Transports en commun (distance (m)) | 100 |
Magasins | Oui |
Sous régime TVA | Non |
---|
Contrôle d'accès | Oui |
---|---|
Sécurité | Oui |
Égouts | Oui |
---|---|
Électricité | Oui |
Gaz | Oui |
Câbles téléphoniques | Oui |
Eau | Oui |
Châssis (type) | pvc |
---|
Type d'environnement | centre ville |
---|---|
Type d'environnement 2 | résidentiel |
Certificat d'électricité (oui/non) | oui, conforme |
---|
PEB E-SPEC (kwh/m²/an) | 115 |
---|---|
Emission CO2 (émission CO2) | 22 |
E total (Kwh/an) | 7948 |
PEB code unique | 20240731-0000686720-01-0 |
PEB valide jusqu'au (datetime) | 31/07/2034 |
Date du PEB (datetime) | 31/07/2024 |